Application submitted for cafe and deli on Turnham Green Terrace

The vacant double unit on Turnham Green Terrace
The former owner of Sam's Brasserie may be poised to make a return to Chiswick with the launch of a cafe/deli on Turnham Green Terrace.
A licensing application has been submitted to Hounslow Council for 59-61 Turnham Green Terrace for the vacant double fronted unit formerly occupied by Luminis.
The application has been made on behalf of Genuine Restaurants Ltd of which Sam Harrison is a director. Sam created the hugely popular Sam's Brasserie which operated from Barley Mow Passage for a decade until he sold out to the Foxlows restaurant chain in 2015. That too has now closed and the site is currently occupied by Betty's.
Sam wasn't out of the business for long and now has a restaurant in Hammersmith called Sam's Riverside which has managed to thrive despite the huge challenges presented by the pandemic. He also set up Sam's Larder, a deli and food store, next to the restaurant and there is some speculation that this may be the template for a cafe deli in Chiswick.
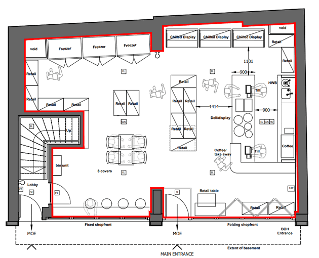
The designs submitted with the application show premises with a small amount of table space and area with a till from which coffee will be served. There would also be a number of display units, many of them refrigerated.

Design for the unit on Turnham Green Terrace submitted with the application
The licence would allow alcohol to be served from 8am - 10pm every day for consumption both on and off the premises
Although a joint application has been previous made to combine with the adjacent unit at number 63, this application does not cover that address. Signs on the door of that premises indicate a new pizza restaurant will be opening there soon.
We have asked Sam for a comment on his plans but have yet to receive a response. An associate of the landlord has confirmed that discussions have taken place.
Like Reading Articles Like This? Help Us Produce More This site remains committed to providing local community news and public interest journalism. Articles such as the one above are integral to what we do. We aim to feature as much as possible on local societies, charities based in the area, fundraising efforts by residents, community-based initiatives and even helping people find missing pets. We’ve always done that and won’t be changing, in fact we’d like to do more. However, the readership that these stories generates is often below that needed to cover the cost of producing them. Our financial resources are limited and the local media environment is intensely competitive so there is a constraint on what we can do. We are therefore asking our readers to consider offering financial support to these efforts. Any money given will help support community and public interest news and the expansion of our coverage in this area. A suggested monthly payment is £8 but we would be grateful for any amount for instance if you think this site offers the equivalent value of a subscription to a daily printed newspaper you may wish to consider £20 per month. If neither of these amounts is suitable for you then contact info@neighbournet.com and we can set up an alternative. All payments are made through a secure web site. One-off donations are also appreciated. Choose The Amount You Wish To Contribute. If you do support us in this way we’d be interested to hear what kind of articles you would like to see more of on the site – send your suggestions to the editor. For businesses we offer the chance to be a corporate sponsor of community content on the site. For £30 plus VAT per month you will be the designated sponsor of at least one article a month with your logo appearing if supplied. If there is a specific community group or initiative you’d like to support we can make sure your sponsorship is featured on related content for a one off payment of £50 plus VAT. All payments are made through a secure web site. |
May 8, 2022